×

Auf Grund der engen wirtschaftlichen Verflechtungen zwischen der Schweiz und dem deutschen Bundesland Baden-Württemberg beherbergt das neue Schweizer Generalkonsulat in Stuttgart neben den konsularischen Diensten auch die Wirtschaftsvertretung der Schweiz in Deutschland.

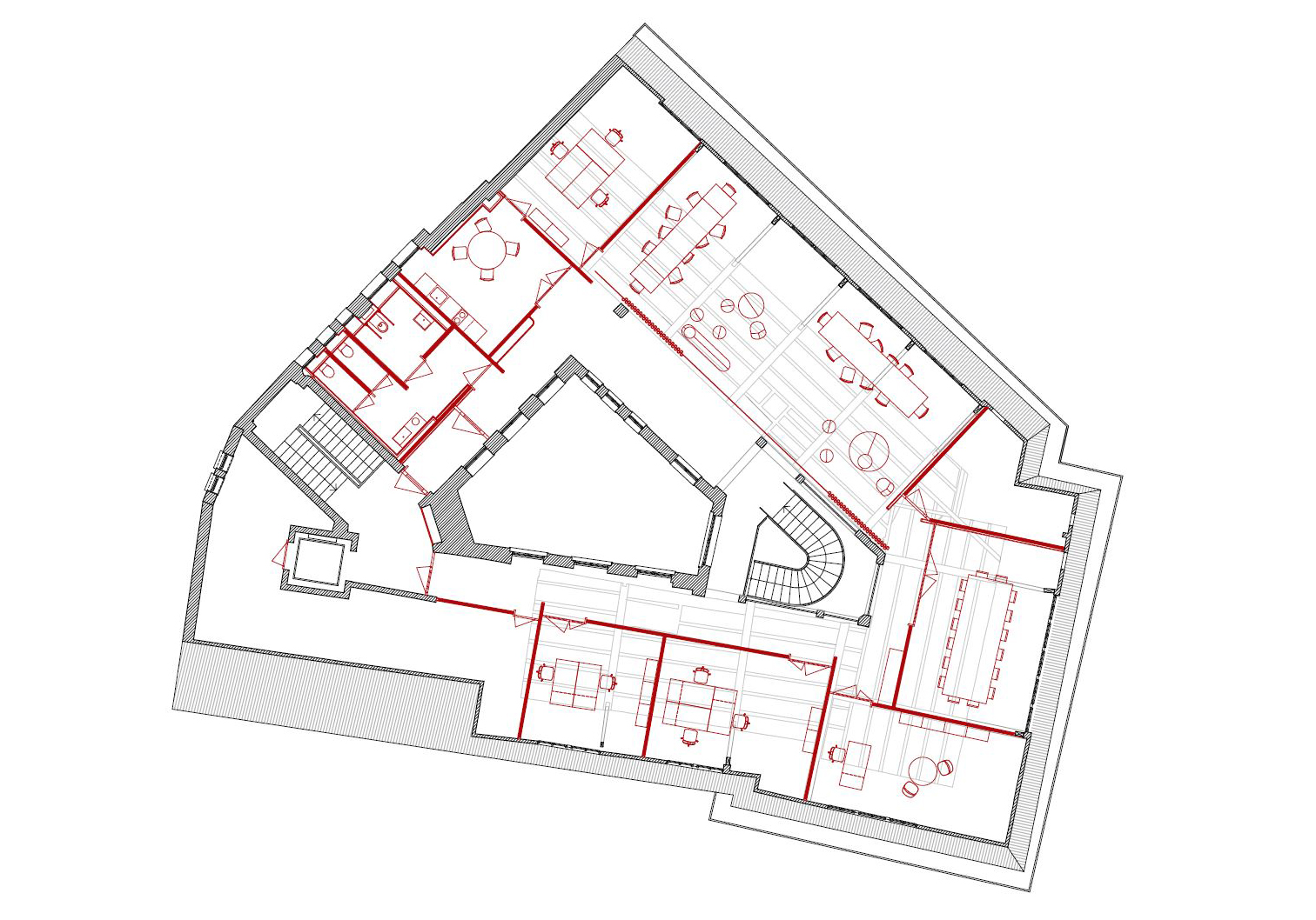
Verwaltungsbereiche, gesicherte Schalteranlagen, Archivbereiche, Sitzungsräume und ein multifunktionaler Lounge- und Veranstaltungsbereich bilden ein komplexes Programm, welches der Forderung nach Sicherheit und Diskretion, sowie nach Offenheit und Kommunikation gleichermassen entsprechen soll.

Die neu angemieteten Flächen befinden sich auf zwei Geschossen in einem historischen Gebäude mit einer Eisenbetonstruktur mit sichtbaren Rippendecken.

In diesen loftartigen Raum wird ein Gefüge von Holzwänden eingewoben. Es entsteht ein fliessendes Raumkontinuum bei dem bewusst vermieden wird klar lesbare Büro- und Gangzonen auszubilden. Stattdessen sollen Öffnungen, Versätze und Staffelungen Quer- und Durchblick ermöglichen.

Über raumhohe verglaste Türen lassen sich Räume nach Belieben schliessen oder öffnen. Dieses Raumgefüge hat zum Ziel, die Kommunikation und den Zusammenhalt zwischen den Mitarbeitenden zu stärken und die Schweiz gegenüber ihren Gäst*innen kommunikativ und offen zu präsentieren.

2020-2022
Ort: Stuttgart, Deutschland
Programm: Schweizer Konsulat, Büro- und Repräsentationsräume
Bauherrschaft: Bundesamt für Bauten und Logistik Bern BBL
Bruttogeschossfläche: 900 m2
Projektstatus: gebaut