×

Das "Neue Hüttli" ersetzt die Holzhütte, in der die Famile des Eigentümers seit den 1950er Jahren oft die Ferien verbracht hat. Das Hüttli stellt den Versuch dar, ein landschaftsbezogenes Haus mit einem geneigten Dach zu entwerfen, mit kritischer Distanz zu den Erinnerungsbildern des traditionellen nordeuropäischen Hauses.

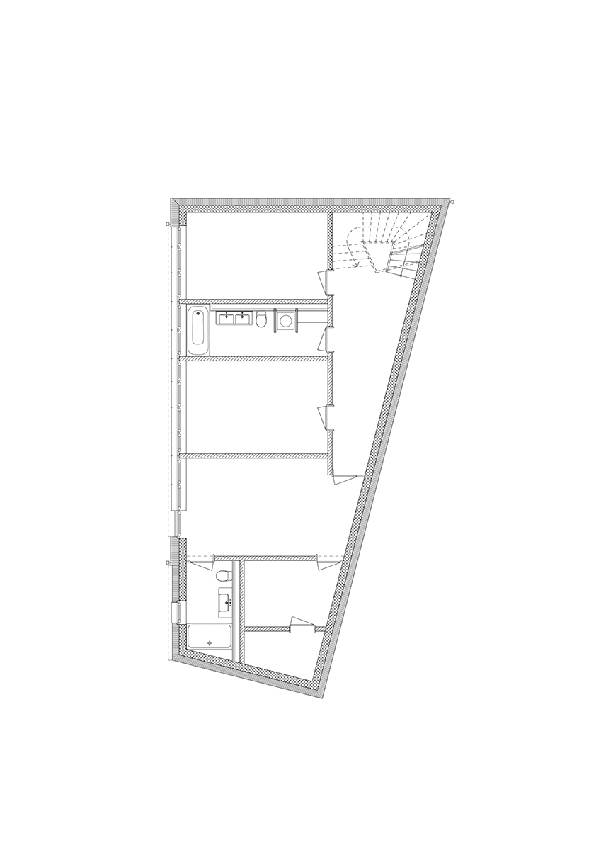
Der Wohnbereich öffnet sich an seiner Längsseite panoramaartig zur Landschaft. An der Stirnseite wird der Blick nach aussen durch die kaleidoskopische Figur des Wintergartens vielfach gebrochen. Auf der unteren Ebene befinden sich die Schlafzimmer mit direktem Ausgang in den Garten.

Das Haus ist als vielgestaltige, zusammengesetzte, offene Form konzipiert. Wände und Dach bilden keinen geschlossenen Körper sondern formulieren ein offenes Gefüge aus fragmentatischen Flächen, Pfeilern und Rhytmen. In seiner Erscheinung halten sich serielle Motive und figürliche Elemente die Waage. Moderne Materialen wie Glas und Metall koexistieren mit grob verputzten Wänden und traditionellen Zimmermannsarbeiten.

2017-2020

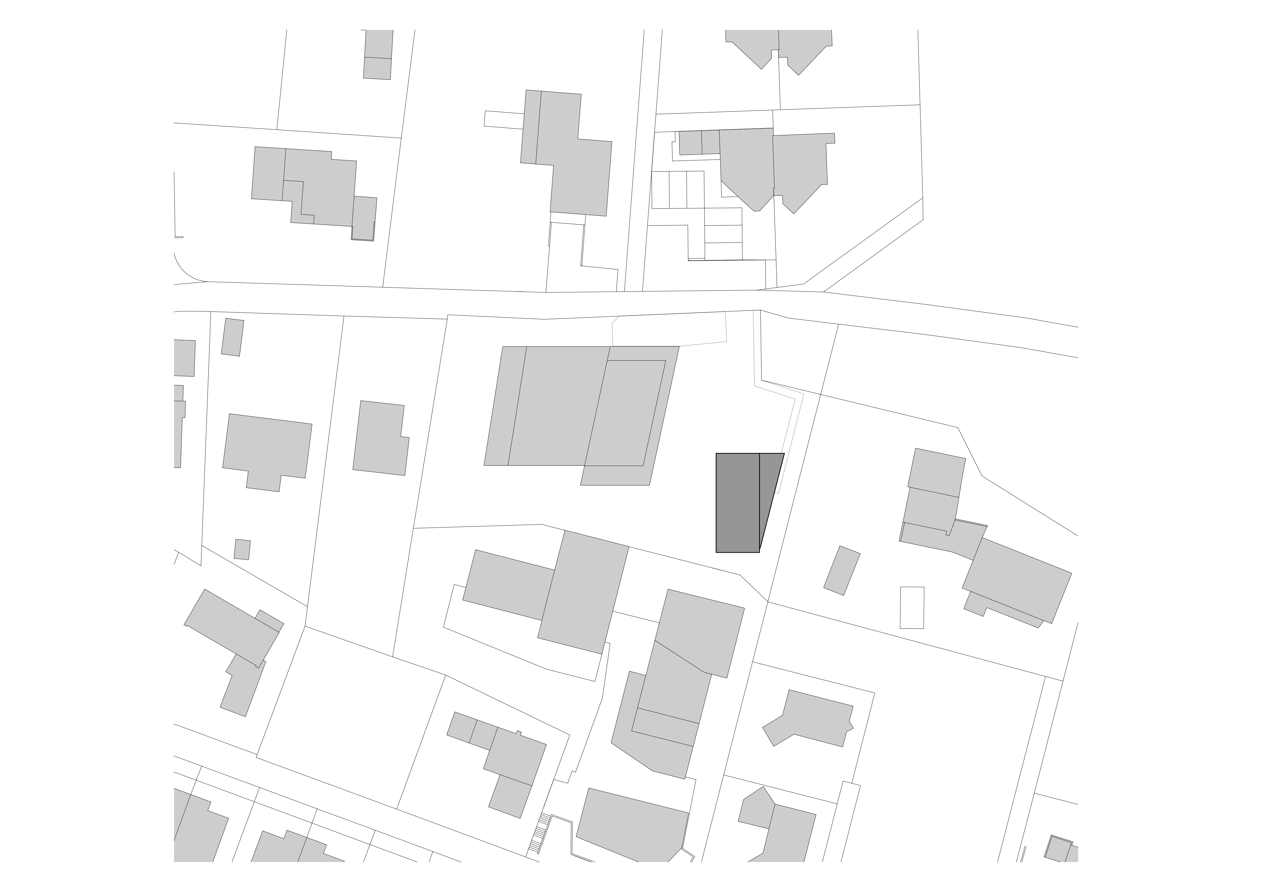
Ort: Therwil, Schweiz

Programm: Einfamilienhaus

Bauherrschaft: Privat

Bruttogeschossfläche: 218 m2

Wettbewerb auf Einladung, 1. Preis

Projektstatus: Gebaut