×

Ein charaktervoller unterirdischer Ausstellungssaal ist das Herzstück der Neuordnung des Kunstmuseums Thurgau. Die Raumwirkung des neuen Ausstellungssaals ist von Fingal’s Cave inspiriert, deren geometrische Basaltformationen die Menschen seit der Romantik zum Nachdenken über die Verschränkung von Architektur- und Naturformen anregen.

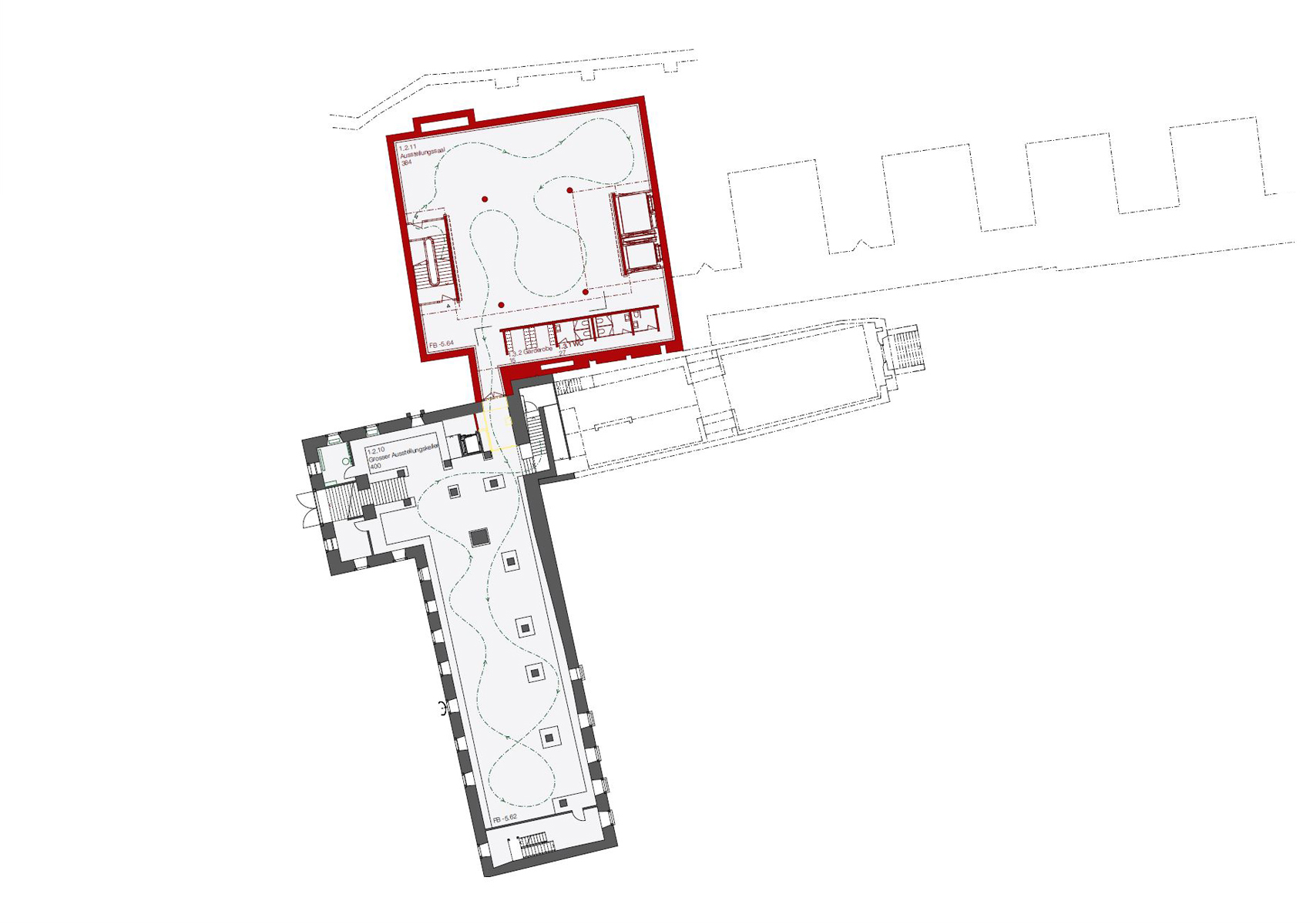
Als vertikale Raumfigur verbindet der neue Ausstellungssaal ober- und unterirdische, alte und neue Ausstellungsräume zu einem gemeinsamen Rundgang. Die attraktive räumliche Kleeblattfigur aus drei eigenständigen Ausstellungssälen ist Antwort auf die ringförmige Raumfolge in der Klosteranlage.

Der neue Ausstellungsraum erscheint als ein in die Tiefe versenktes Raumgefäss, über dem die Klausen rekonstruiert werden. Von aussen betrachtet bleibt die Gesamterscheinung der Kartause und des Museums in ihrer gewachsenen Qualität und Räumlichkeit erhalten. Das serielle, rhythmische Bild der über den Kreuzgang verbundenen Kleinbauten, der zugehörigen Gärten und des langen, von der Umfassungsmauer beschirmten Gartenstreifens bleibt unversehrt.

Für die Ausstellung übernehmen die rekonstruierten Klausen die Funktion von Oberlichtern. Für Besucher:innen wird der Akt des Hinabsteigens oder -fahrens zum räumlichen Erlebnis. Der Treppenkörper ist über eine Doppelhelixfigur als Besucher:innen- und Diensttreppe ausgebildet.

Ortbetonwände mit einem gewellten Schalungsbild verleihen dem neuen Saal eine textile, vorhangartige Wirkung. Die Verbindung mit dünnen Wand- und Brüstungstafeln aus Faserzement führt zu einem Gesamtbild, dass zwischen leicht und schwer, massiv und schalenartig oszilliert. Er soll Künstler:innen und Kurator:innen ein charaktervolles Gegenüber anbieten – für einen Dialog zwischen Architektur und Kunst.

2022
Ort: Thurgau, Schweiz
Programm: Erneuerung Kunstmuseum
Bauherrschaft: Kantonales Hochbauamt Thurgau
Nettogeschossfläche: 2’758 m2
Wettbewerb im offenen Verfahren
Projektstatus: Nicht gebaut