×

Das Thema der des Projekts Am Ueberlandpark ist eine Neuinterpretation des Naturversprechens der traditionellen Gartenstadt.

Die ASIG Wohngenossenschaft (Arbeiter-Siedlungs-Genossenschaft) plant eine sozialverträgliche Erneuerung ihrer Siedlung im Dreispitz. Die zweite Etappe wird als Zielbild vom Masterplan Areal Dreispitz sowie baurechtlich vom Gestaltungsplan Ueberlandpark bestimmt, welcher die Entwicklung der Teilgebiete entlang des neuen Aussenraumes Ueberlandpark auf der neuen Einhausung der Autobahn definiert.

Eine Zeilenbebauung aus hohen und niedrigen Gebäuden verbindet sich räumlich mit dem höher gelegenen Ueberlandpark, ergänzt durch einen Wohnturm mit Kindergarten.

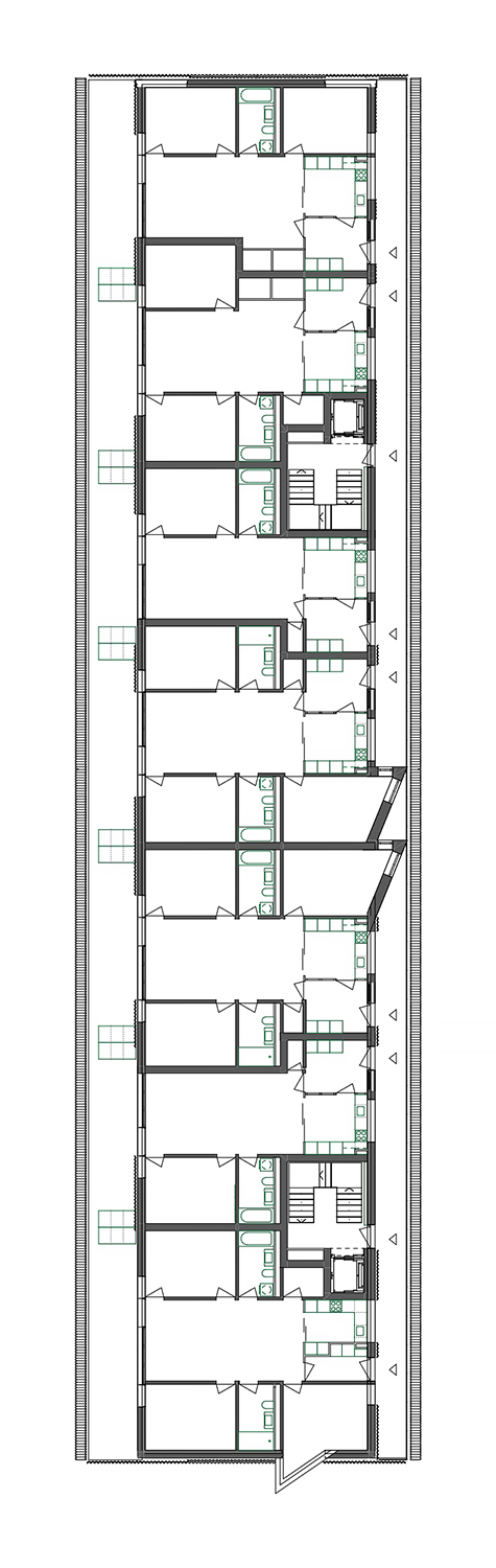
In den Zeilenbauten sind die Geschosswohnungen als Balkonwohnungen ausgebildet. Die Wohnung wird über eine verglaste Raumschicht mit Entrée und Küche betreten. Die Küche wendet sich zum Laubengang und schützt zugleich die Privatheit des Wohnbereiches. Das Maisonettehaus verbindet die Qualitäten einer Wohnung mit jenen eines Reiheneinfamilienhauses. Ein zweigeschossiger Luftraum mit einer überbreiten Spindeltreppe ist der lebendige Mittelpunkt der Wohnung. Der Turm ist von der Leichtigkeit der Zürcher Wohnhochhäusern der Nachkriegszeit inspiriert. Sein sternförmiger Grundriss öffnet sich allseitig zur Landschaft.

Laubengänge und grosszügige Balkone verleihen den Wohnhäusern den Ausdruck offener Figuren. Die Laubenganghäuser stehen im Einklang mit der Atmosphäre der Grünräume und erhalten über ihre ausgestellte Faserzementbändern einen schwebenden Ausdruck. Die Gesamterscheinung gleicht in ihrer Offenheit dem Blattkörper eines Baumes oder dem Federkleid von Vögeln. Der Gemeinschaftraum ist mit einer Brücke an den Ueberlandpark angebunden. Weitere Angebote wie z.B. Flexräume, Kochatelier und Treffpunkt bereichern das Siedlungsleben.

Das Tragwerk wird im Stützen-Platten-Prinzip mit sichtbaren Stützen und Unterzügen, schlanken Decken und nichttragenden Holzständerwänden als Gebäudehülle erstellt. In Kombination mit der Laubengangerschliessung wird eine langfristige Anpassbarkeit des Gebäudes an die sich verändernden Bedürfnisse der Genossenschaft ermöglicht.

2022
Ort: Zürich, Schweiz
Programm: Wohnen, KiGa, KiTa, Gemeinschaftsräume, Flexräume, Gewerbe
Bauherrschaft: ASIG Wohngenossenschaft
Nettogeschossfläche: 12'300 m2
Zweistufiger Studienauftrag im selektiven Verfahren, 1. Preis
Projektstatus: in Planung