×

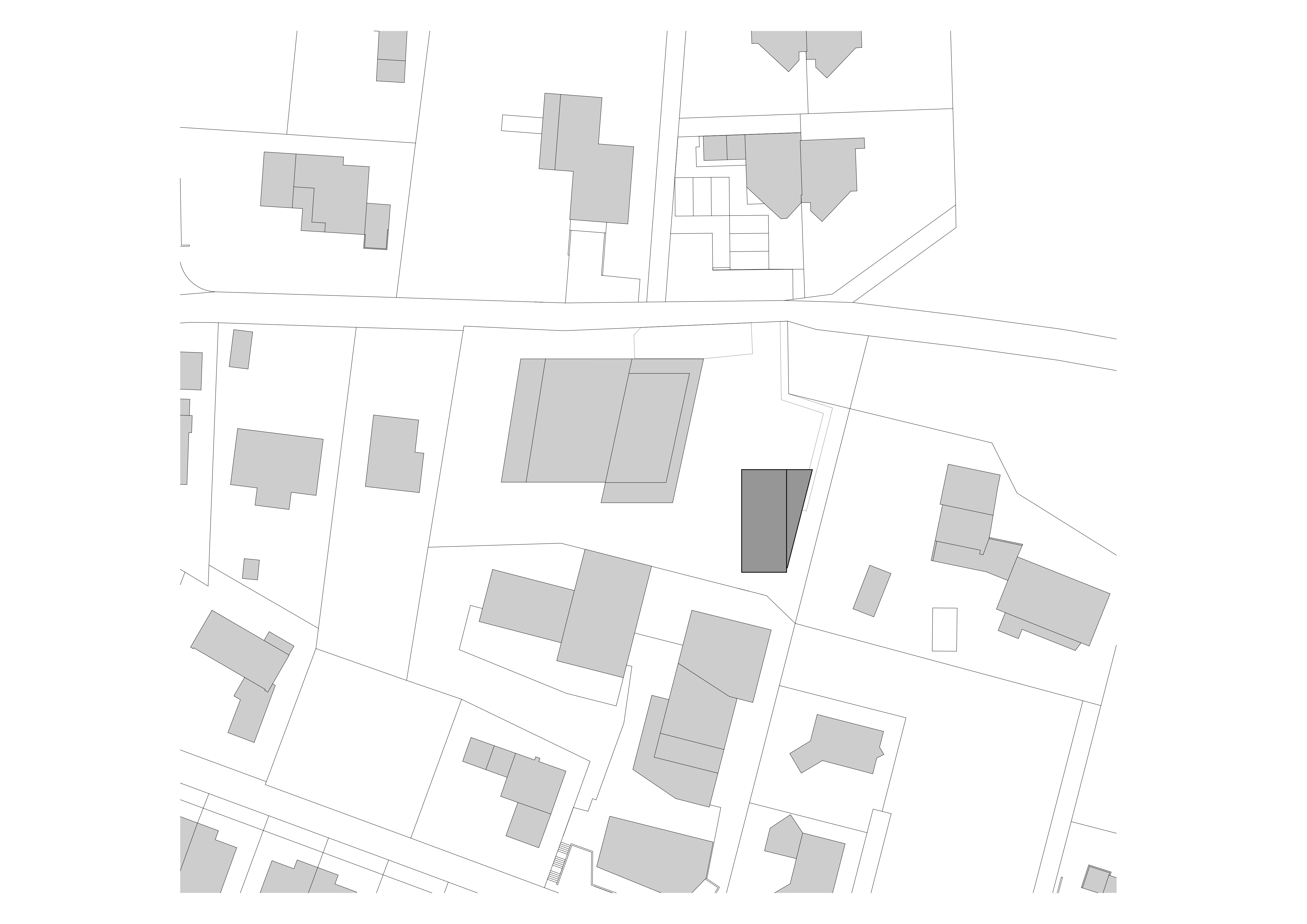
The ‘Neues Hüttli’ is a replacement for a wooden hut in which the owner’s family often spent their holidays starting in the 1950s. The Hüttli represents an attempt to design a landscape-oriented house with a pitched roof that keeps a critical distance from vestigial images of the traditional northern European house.

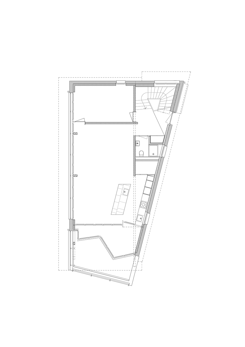
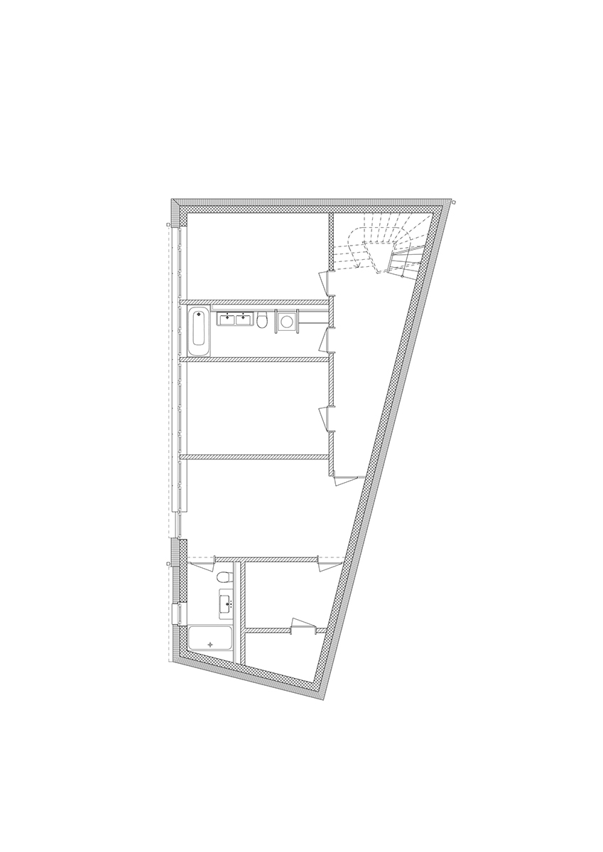
Along its long side, the living area opens up panoramically towards the countryside. On the end side, the view towards the outside is multiply refracted by the kaleidoscopic figure of the winter garden. The bedrooms are on the lower level, with direct access to the garden.

The building is conceived as a multifaceted, composite, open form. The walls and roof do not form a closed body, but rather formulate an open structure consisting of fragmentary surfaces, pillars and rhythms. In its appearance, serial motifs and figurative elements are held in balance. Modern materials such as glass and metal coexist with roughly plastered walls and traditional carpentry work.

2017-2020
Location: Therwil, Switzerland
Programme: single family house
Client: Private
Net Surface: 218 m2
Invited Competition, first prize
Project Status: Built