×

The Köchlistrasse apartment building is inspired by the cheerful attitude to life of Dutch modernism.

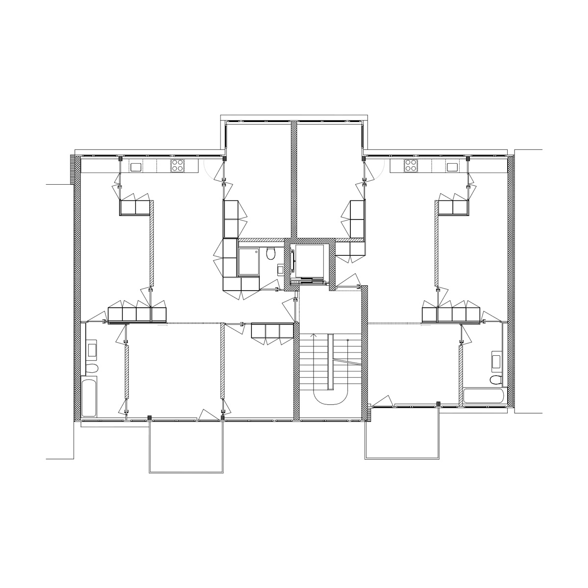
The basic idea in the apartments is to interweave the individual rooms into a flowing spatial structure. Wall panels, fitted cupboards and precisely positioned doors create a spatial arrangement in which both an open feeling and also the option to withdraw into the privacy of a closed room are possible. Even the living room can be separated from the entrance and the spacious dining kitchen using a sliding door. This produces apartments in which the relationship between openness and privacy can be constantly reinterpreted and renegotiated by different groups of residents in a variety of ways and without the need for structural measures. Linoleum floors in all of the rooms, along with painted wooden cupboards and doors, create a modern sense of homeliness. The facades consist of plastered balustrade panels decorated with fine geometric circle patterns. In the interplay with the figurative and expressive ground floor, this gives appropriate expression to the gentle utopia of cooperative living.

A conventional construction method with reinforced concrete and masonry is supplemented by a timber façade construction, so that the idea of spatial furniture developed inside the apartments is continued in the facade.

2019

Location: Zürich, Switzerland

Programme: 10 apartments, workspace

Client: WOGENO

Net Surface: 1’006 m2

Competition 

Project Status: Not built