×

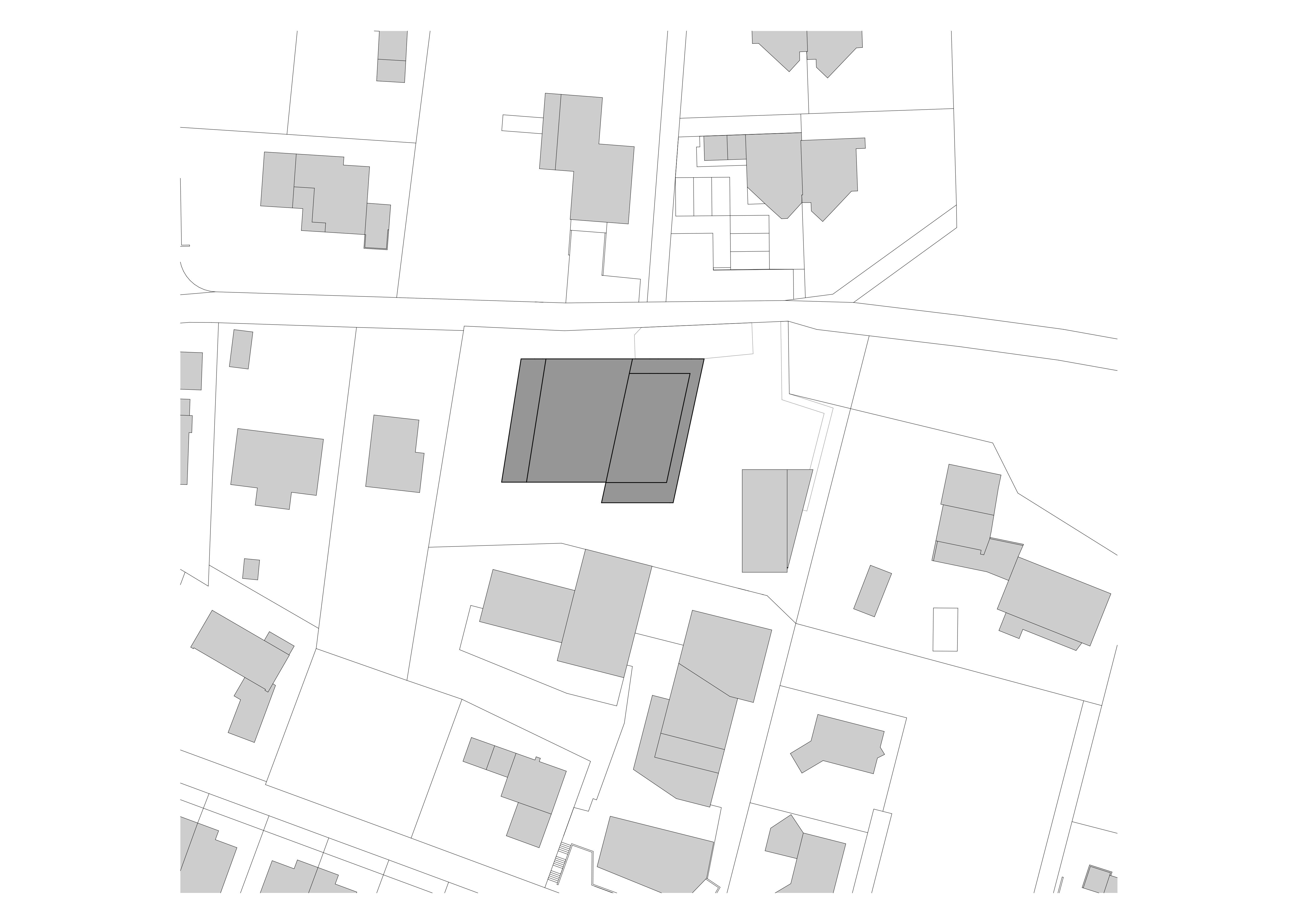
In Switzerland, the terraced house has been a popular building type since the postwar construction boom. With its stepped volume, large terraces and sweeping views, it provided a solution to issues of modern housing in a hilly landscape. In more recent versions of the type, the entry to the underground parking garage has become the building’s main entrance, making it part of Switzerland’s contemporary car-centred suburban lifestyle.

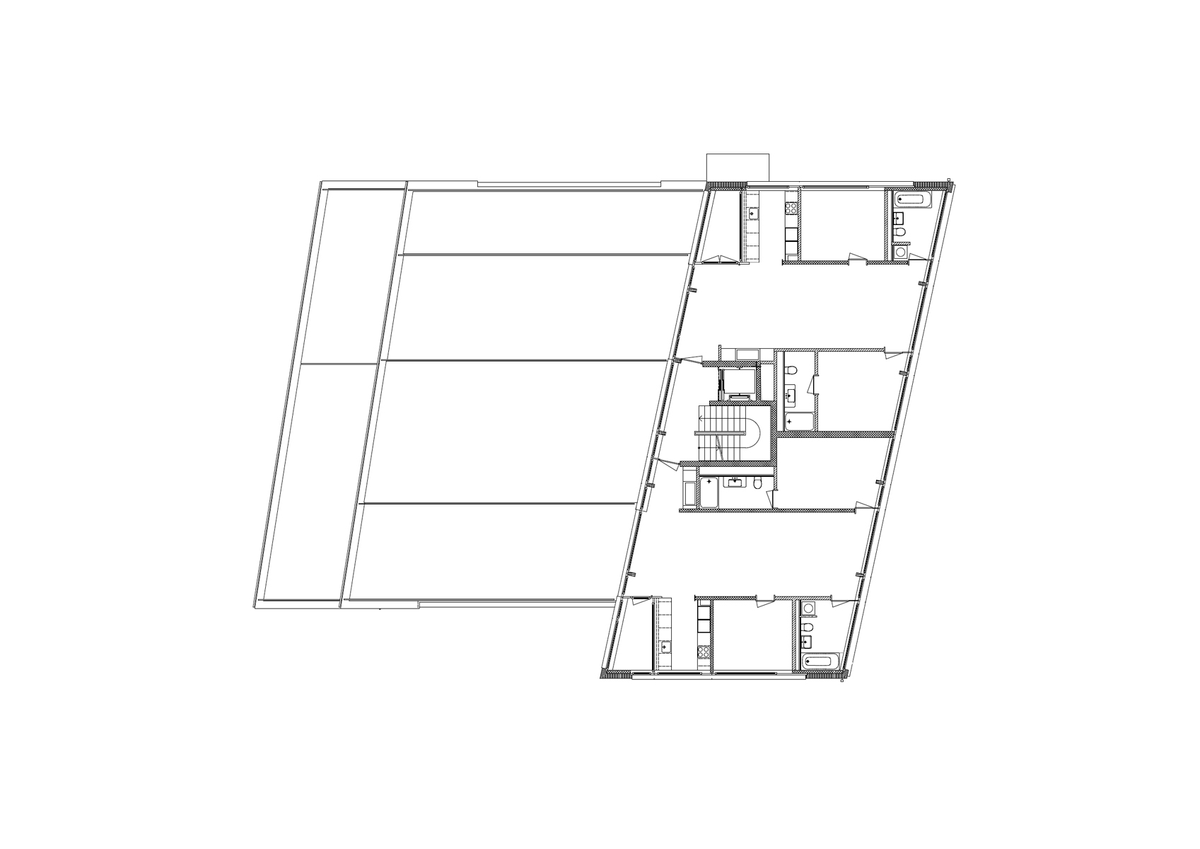
The terraced house is located near the forest overlooking the countryside and embraces the modern, anti-romantic character of this building type. Its eight apartments have spacious terraces with sweeping views of rural Alsace across the French border. In contrast to the pastoral setting, the form of the building is highly rational and the result of a relentless process of maximising the rentable space. As a result, both plans and facade motifs are serial and non-compositional in character. The plans consist of a series of parallel lines that are inscribed into the slightly distorted building shape.

The facades emphasise the overall tension emanating from the building’s volume. Multiple windows are combined into long viewing boxes, reminiscent of minimalist sculptures. The terrace railings facing the landscape have a formal steel grid, while the side railings consist of a simple chain-link fence.

The apartments are organised around a central hall that extends from the terrace deep into the building. The hall is similar to a portego, the deep hall in a Venetian palace. It is flanked on both sides by bedrooms, a study, a working kitchen and a winter garden.

2017-2020

Location: Therwil, Switzerland

Programme: 8 unit apartment building

Client: Private

Net Surface: 1’358 m2

Invited Competition, first prize

Project Status: Built